ПРОЕКТ БАНИ «КЕДРОВОЕ ШАЛЕ ЗАВЕСА» 245 М²









Площадь
245 м²
Комнат отдыха
1
Размер
18500*12400
Этажность
1
Категория проекта:
Проекты бань с террасой
Диаметр бревна:
30
Представляем вам уникальный проект бани «Кедровое Шале Завеса» – идеальное сочетание роскоши, функциональности и природной красоты. Этот проект предназначен для тех, кто ценит высокое качество, уют и неповторимость стиля Шале.
Особенности проекта
Площадь бани составляет 245 м², а ее диаметр достигает 30 см, что обеспечивает достаточное пространство для полноценного отдыха и релаксации. Изготовленная из бревна кедра, она обладает особым шармом.
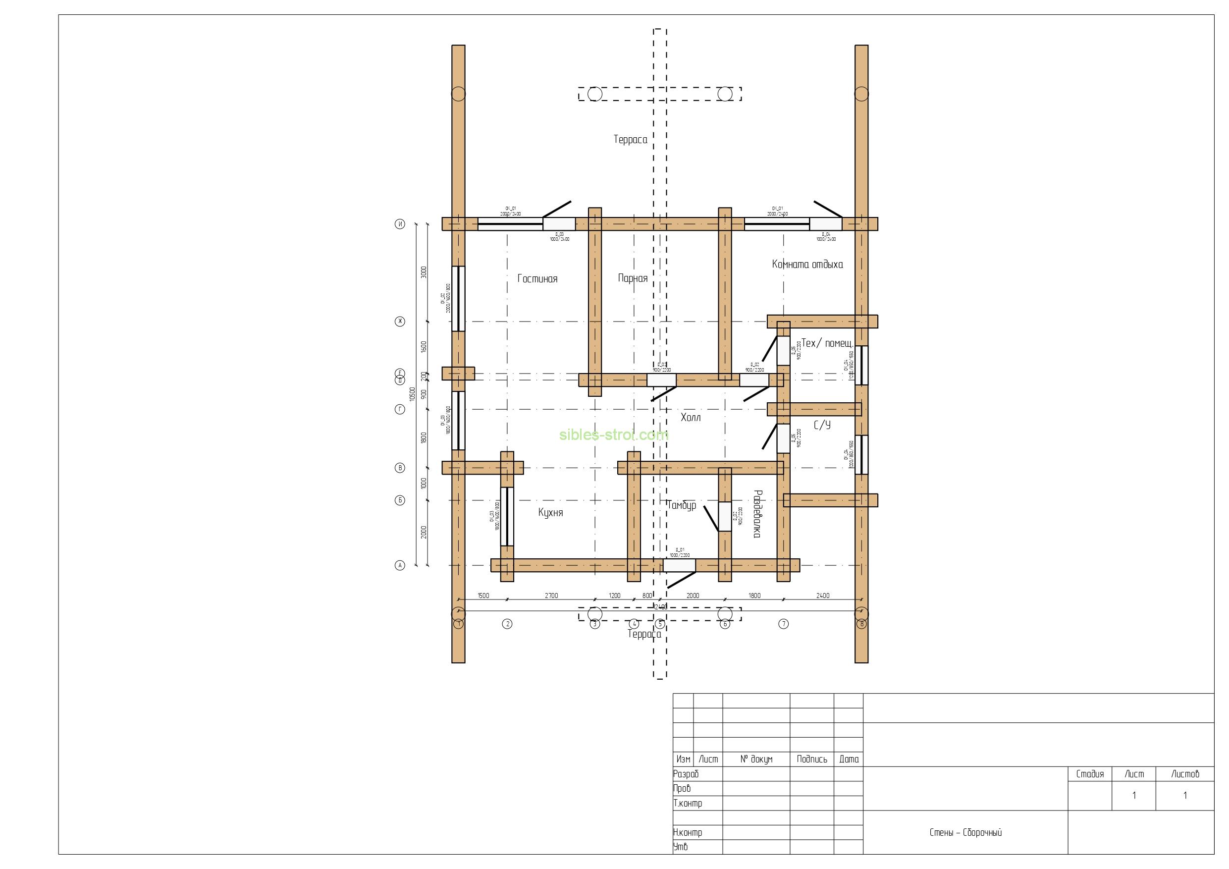
Внутреннее устройство
- Терраса с большими окнами: встречайте утренний свет и наслаждайтесь великолепным видом на окружающую природу прямо с террасы бани.
- Тамбур: просторный вестибюль обеспечивает удобное разделение между внешним и внутренним пространством.
- Кухня: позвольте себе насладиться приготовлением вкусных блюд прямо в вашей бане благодаря функциональной кухне.
- Гостиная: идеальное место для отдыха и общения в кругу семьи и близких вам людей.
- Парная: наслаждайтесь ароматом кедра и лечебными свойствами парной, где вы сможете полностью расслабиться и очистить организм.
- Комната отдыха: после парной сессии расслабьтесь и наслаждайтесь тишиной и покоем в комнате отдыха.
- Санузел: мы предусмотрели все для вас, включая современно оборудованный санузел.
«Кедровое Шале Завеса» – это не просто баня, это уникальное место, где каждая деталь продумана для создания неповторимого атмосферы уюта и гармонии. Погрузитесь в мир тепла и комфорта вместе с нами.
Цена от:
6 700 000 руб
Примерный объем бревна, затраченный на строительство:
120 м³
Шале с панорамными окнами станет украшением вашего участка. Возможно проектирование с бассейном.
Планировка
План бани
